GWL Lippstadt

Baugrund­stücke

Wir erschließen und verkaufen Baugrundstücke in und um Lippstadt!

In der Zusammenarbeit mit der Stadt Lippstadt erschließen wir neue Grundstücke für den Wohnungsbau. Ziel ist es dabei vorrangig jungen Familien mit Kindern, aber auch allen anderen Bauwilligen, Baugrundstücke zu erschwinglichen Preisen anbieten zu können. Kontinuierlich werden deshalb in Lippstadt und in den Ortsteilen neue Baugebiete erschlossen oder brachliegende Flächen überplant und für den Wohnungsbau aktiviert.

Erschließungen

Übersicht der
GWL-Baugrund­stücke

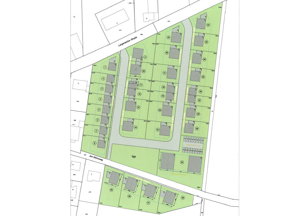
"Am Erlbusch"

Overhagen, ca. 30 Bauplätze

"Grüner Weg/Sommerweg"

Bad Waldliesborn, ca. 45 Bauplätze

"Kreuzkampklinik"

Bad Waldliesborn, ca. 20 Bauplätze

"Auf dem Rode"

Lippstadt Nord, ca. 120 Bauplätze

"Goethestraße Nord"

Lippstadt, ca. 70 Bauplätze

Kontakt

Ihre Ansprech­partner
für Baugrund­stücke

Meinolf Köller

Geschäftsführer

Jan Timmermann

Technischer Leiter und Prokurist

Für interessierte

Interesse am Erwerb eines
Baugrundstücks?

Sollten Sie an dem Erwerb eines GWL-Grundstücks interessiert sein, füllen Sie bitte das folgende Formular vollständig und unverbindlich aus. Ihre Daten werden selbstverständlich vertraulich behandelt.

Sie haben auch die Möglichkeit das Formular hier herunterzuladen und uns auf dem Postweg oder persönlich zukommen zu lassen.